10-12 Horne Road, Mount Mee – Luxurious Entertainers Home
Added: January 28, 2026
Open Home:
Nestled in the prestigious Valley View Estate of King Scrub, this stunning Hamptons-inspired residence represents the pinnacle of refined country living. Completed in December 2024 and presenting as brand new, this home by renowned builders Hallmark Homes, is in immaculate condition.
Blending refined Hamptons elegance with the serenity of acreage living, every detail has been finished to perfection - all set against the breathtaking backdrop of 360-degree mountain views.
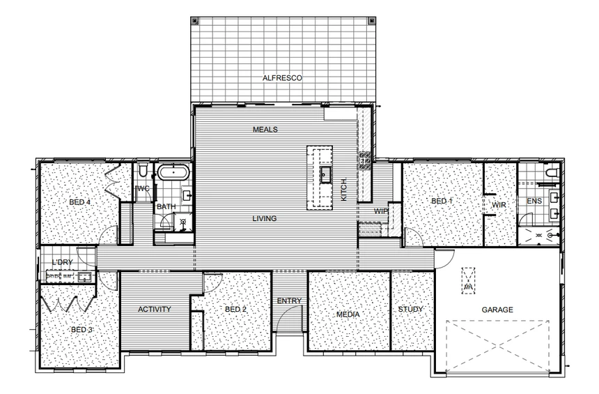
Exceptional Design
From the moment you arrive, the classic Hamptons facade is a statement that sets the tone for what lies inside. Step inside to discover expansive living spaces crowned by soaring raked ceilings in the open-plan living, dining, kitchen, and alfresco areas. Meanwhile high 2.7-metre ceilings provide a sense of space, airflow and allow natural light to flood every corner; creating an atmosphere that feels both spacious and warmly inviting.
This 4-bedroom, 2-bathroom residence has been meticulously designed for modern family living, offering versatile spaces that adapt to your lifestyle - a dedicated media room for family movie nights, a kids' retreat, and a private study perfect for those working from home.
Not to mention the striking heart of this home, which is undoubtedly the chefs kitchen. Featuring a 3 meter long grand island bench, premium appointments including a 900mm gas oven and cooktop, spacious butler's pantry, and beautiful herringbone splashbacks, everything has been considered!
Key Interior Features:
• 4 generous bedrooms plus 2 bathrooms with shaker cabinetry
• Raked ceilings in living, dining, kitchen and alfresco areas
• 2.7m high ceilings throughout remainder of home
• Media room, Kids' retreat and Private study for ultimate lifestyle flexibility
• Full ducted air conditioning with ZoneTouch3 system for personalised climate control throughout
• Statement herringbone splashbacks in kitchen and laundry
• Stone benchtops throughout
• Double garage plus space for additional 2 cars in the shed
• Fenced house yard - perfect for children and furry friends
Stepping outside and through the alfresco entertaining space, you are greeted by a sparkling 4m x 8m pool with frameless glass fencing - providing the perfect summer sanctuary. The covered alfresco area - with its impressive raked ceiling - seamlessly extends your living space outdoors for year-round entertaining.
The large drive-through shed is a standout feature, boasting 4-metre-high walls and wide roller doors to both front and rear. With space for two vehicles in the shed plus the double garage, you'll enjoy a total of four covered car parks - perfect for families with multiple vehicles, boat, caravan, or those requiring workshop space.
Perfect for Equestrian Enthusiasts and Hobby Farmers
• Fully fenced paddock currently used for horses but would also be ideal for chickens, goats, or other animals
• Natural flowing creek providing year-round water for livestock
• Adjoining council nature reserve ensures protected green space and privacy
• Flat, usable land perfect, additional sheds, motocross track, orchard, gardens, or secondary dwelling (subject to council approval)
• 2 x 22,700L water tanks with additional tank attached to the shed
Country Living without Compromise
Valley View Estate in King Scrub offers an increasingly rare combination - genuine country living with convenient access to essential services. Located just minutes from Dayboro's vibrant township with its cafés, shops, and services, approximately 20 minutes from Samford Village, and under an hour from Brisbane's CBD and the amenities of the city, this address delivers the best of both worlds. 20 mins to Petrie and 5 minutes from Dayboro town.
Why You'll Love This Property
This is more than a home - it's a lifestyle. Whether you're dreaming of weekend rides through your own paddocks, a growing family seeking space and versatility, or seeking a peaceful work-from-home sanctuary with room to expand, this property delivers exceptional value.
Everything is new, under warranty, energy-efficient, and requires no immediate maintenance or improvements. Simply move in and start living your dream country lifestyle from day one.
Contact us today to arrange your private inspection of this exceptional estate.
Map is for rough illustrative purposes
Immerse yourself in the captivating ambiance of our properties. Book a personalized tour to explore the exquisite beauty and unique features of our property.
Our knowledgeable staff will guide you through the property, answering any questions you may have.
Added: January 28, 2026
Added: January 28, 2026
Added: February 10, 2026
Added: February 10, 2026
Added: February 10, 2026
Added: February 10, 2026
Nestled in the prestigious Valley View Estate of King Scrub, this stunning Hamptons-inspired residence represents the pinnacle of refined country living. Completed in December 2024 and presenting as brand new, this home by renowned builders Hallmark Homes, is in immaculate condition.
Blending refined Hamptons elegance with the serenity of acreage living, every detail has been finished to perfection - all set against the breathtaking backdrop of 360-degree mountain views.
Exceptional Design
From the moment you arrive, the classic Hamptons facade is a statement that sets the tone for what lies inside. Step inside to discover expansive living spaces crowned by soaring raked ceilings in the open-plan living, dining, kitchen, and alfresco areas. Meanwhile high 2.7-metre ceilings provide a sense of space, airflow and allow natural light to flood every corner; creating an atmosphere that feels both spacious and warmly inviting.
This 4-bedroom, 2-bathroom residence has been meticulously designed for modern family living, offering versatile spaces that adapt to your lifestyle - a dedicated media room for family movie nights, a kids' retreat, and a private study perfect for those working from home.
Not to mention the striking heart of this home, which is undoubtedly the chefs kitchen. Featuring a 3 meter long grand island bench, premium appointments including a 900mm gas oven and cooktop, spacious butler's pantry, and beautiful herringbone splashbacks, everything has been considered!
Key Interior Features:
• 4 generous bedrooms plus 2 bathrooms with shaker cabinetry
• Raked ceilings in living, dining, kitchen and alfresco areas
• 2.7m high ceilings throughout remainder of home
• Media room, Kids' retreat and Private study for ultimate lifestyle flexibility
• Full ducted air conditioning with ZoneTouch3 system for personalised climate control throughout
• Statement herringbone splashbacks in kitchen and laundry
• Stone benchtops throughout
• Double garage plus space for additional 2 cars in the shed
• Fenced house yard - perfect for children and furry friends
Stepping outside and through the alfresco entertaining space, you are greeted by a sparkling 4m x 8m pool with frameless glass fencing - providing the perfect summer sanctuary. The covered alfresco area - with its impressive raked ceiling - seamlessly extends your living space outdoors for year-round entertaining.
The large drive-through shed is a standout feature, boasting 4-metre-high walls and wide roller doors to both front and rear. With space for two vehicles in the shed plus the double garage, you'll enjoy a total of four covered car parks - perfect for families with multiple vehicles, boat, caravan, or those requiring workshop space.
Perfect for Equestrian Enthusiasts and Hobby Farmers
• Fully fenced paddock currently used for horses but would also be ideal for chickens, goats, or other animals
• Natural flowing creek providing year-round water for livestock
• Adjoining council nature reserve ensures protected green space and privacy
• Flat, usable land perfect, additional sheds, motocross track, orchard, gardens, or secondary dwelling (subject to council approval)
• 2 x 22,700L water tanks with additional tank attached to the shed
Country Living without Compromise
Valley View Estate in King Scrub offers an increasingly rare combination - genuine country living with convenient access to essential services. Located just minutes from Dayboro's vibrant township with its cafés, shops, and services, approximately 20 minutes from Samford Village, and under an hour from Brisbane's CBD and the amenities of the city, this address delivers the best of both worlds. 20 mins to Petrie and 5 minutes from Dayboro town.
Why You'll Love This Property
This is more than a home - it's a lifestyle. Whether you're dreaming of weekend rides through your own paddocks, a growing family seeking space and versatility, or seeking a peaceful work-from-home sanctuary with room to expand, this property delivers exceptional value.
Everything is new, under warranty, energy-efficient, and requires no immediate maintenance or improvements. Simply move in and start living your dream country lifestyle from day one.
Contact us today to arrange your private inspection of this exceptional estate.
Immerse yourself in the captivating ambiance of our properties. Book a personalized tour to explore the exquisite beauty and unique features of our property.
Our knowledgeable staff will guide you through the property, answering any questions you may have.
Added: January 28, 2026
Added: January 28, 2026
Added: February 10, 2026
Added: February 10, 2026
Added: February 10, 2026
Added: February 10, 2026
Browse our range of properties currently for Sale
Emails
Phone
Are you building market share in particular territory? If you need help talk to Craig on 0403359541