8/69-71 Mcnamara Road, Rocksberg – An Exclusive Mountaintop Sanctuary – Unrivalled Luxury & Panoramic Prestige
Added: May 19, 2026
Open Home:
Thu 21 May 1:00 pm–1:30 pm / Sat 23 May 10:00 am–10:30 am
Contact Agent
Nestled in a quiet pocket of Cedar Creek, accessed via Mount O'Reilly Road through Samford Valley, this elevated acreage retreat combines privacy, convenience and breath-taking natural beauty. Enjoying a prized north-eastly aspect, this flexible family home welcomes cooling mountain breezes and uninterrupted views across rolling hills, hidden valleys and the striking D'Aguilar mountain range.
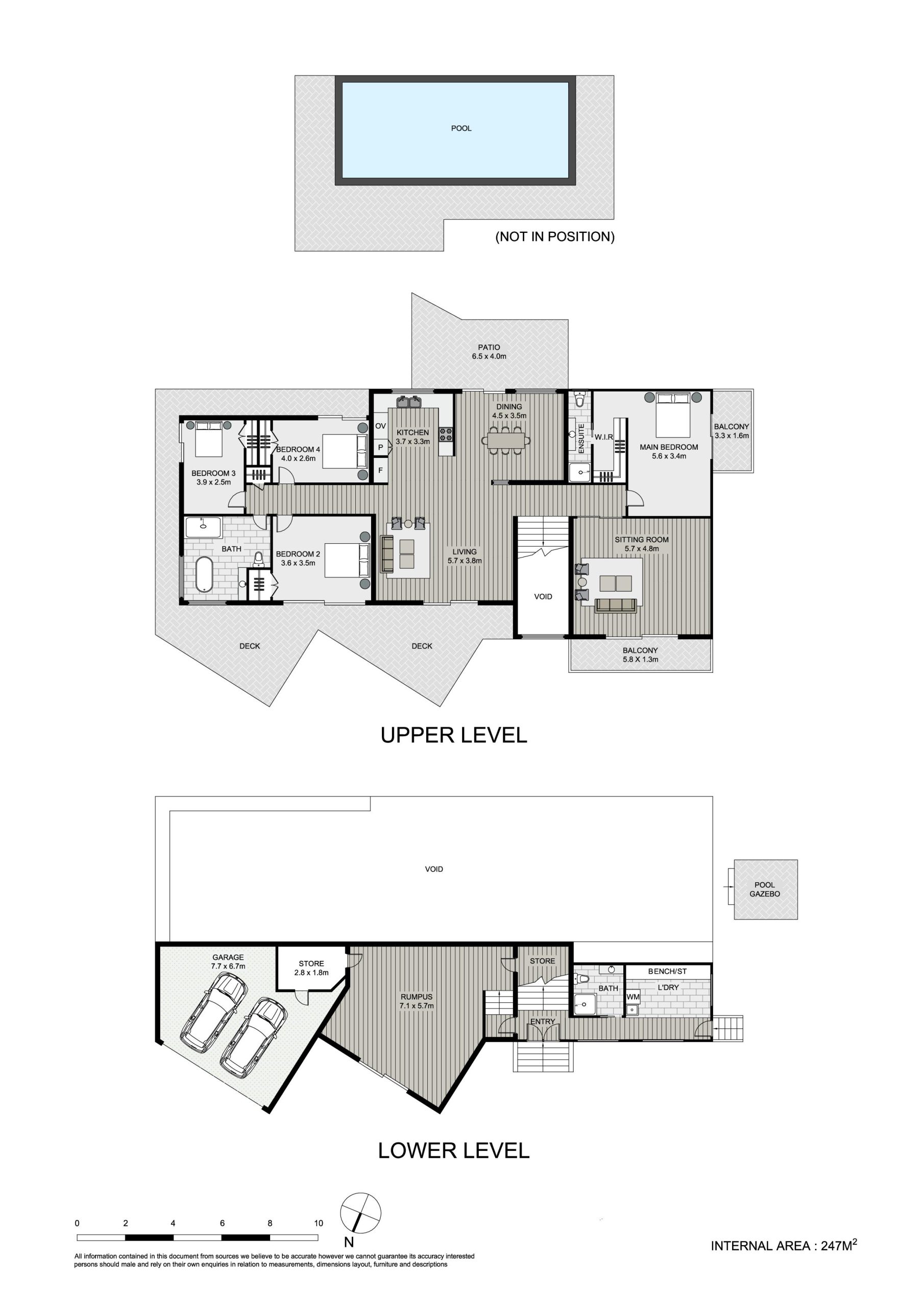
Designed to evolve with family life, this versatile home reveals a spacious and flexible floorplan, where multiple living zones balance connection, retreat and functionality with ease. Expansive glazing and seamless indoor-outdoor integration invite the landscape in, creating a constant connection to the stunning surrounds.
Open plan living forms the heart of the home, centred around a generous chef's kitchen enhanced by a striking glass roof feature. Living and dining flow effortlessly to outdoor entertaining on both sides, with the front verandah providing a stunning vantage point over the sparkling inground pool and expansive mountain and valley vistas.
The master retreat opens to the front verandah and is complemented by a spacious ensuite with walk-in shower, freestanding bathtub and a perfectly positioned picture window. A second ensuited bedroom, additional family bathroom and multiple living zones offer flexibility and separation for families of all sizes.
Outdoors, the lifestyle offering continues with a private poolside setting, open usable land and the charm of acreage living. With space for vegetable gardens or fruit trees, alongside 50,000L of rainwater storage, 5kW solar, Starlink connectivity and a chook pen, the property embraces a more self-sufficient way of life, while the surrounding grounds offer space to expand, explore or simply unwind.
Enhancing its versatility, a flat pad below the main residence presents exciting potential for a second dwelling or additional improvements (STCA), offering flexibility for extended family living or future value.
Despite its peaceful, private setting, the property remains conveniently located just 8 minutes from the heart of Samford Village, with its cafes, schools and local amenities, and approximately 35 minutes to the Brisbane CBD and airport, offering the perfect balance of seclusion and accessibility.
Opportunities of this calibre are tightly held. Contact Chelsea Perry of McGrath Samford today to be among the first to experience this exceptional property.
Disclaimer: While every effort has been made to ensure the accuracy of this information, the selling agents cannot guarantee its accuracy and accept no liability (whether express or implied) for any errors or omissions. Neither the seller nor the selling agent makes any representation or warranty as to the accuracy of the information provided. Interested parties should undertake their own due diligence to verify the information. The details provided are indicative only and should not be relied upon unless independently confirmed.
Map is for rough illustrative purposes
Immerse yourself in the captivating ambiance of our properties. Book a personalized tour to explore the exquisite beauty and unique features of our property.
Our knowledgeable staff will guide you through the property, answering any questions you may have.
Added: May 19, 2026
Added: May 19, 2026
Added: May 18, 2026
Added: May 21, 2026
Added: May 21, 2026
Added: May 21, 2026
Contact Agent
Nestled in a quiet pocket of Cedar Creek, accessed via Mount O'Reilly Road through Samford Valley, this elevated acreage retreat combines privacy, convenience and breath-taking natural beauty. Enjoying a prized north-eastly aspect, this flexible family home welcomes cooling mountain breezes and uninterrupted views across rolling hills, hidden valleys and the striking D'Aguilar mountain range.
Designed to evolve with family life, this versatile home reveals a spacious and flexible floorplan, where multiple living zones balance connection, retreat and functionality with ease. Expansive glazing and seamless indoor-outdoor integration invite the landscape in, creating a constant connection to the stunning surrounds.
Open plan living forms the heart of the home, centred around a generous chef's kitchen enhanced by a striking glass roof feature. Living and dining flow effortlessly to outdoor entertaining on both sides, with the front verandah providing a stunning vantage point over the sparkling inground pool and expansive mountain and valley vistas.
The master retreat opens to the front verandah and is complemented by a spacious ensuite with walk-in shower, freestanding bathtub and a perfectly positioned picture window. A second ensuited bedroom, additional family bathroom and multiple living zones offer flexibility and separation for families of all sizes.
Outdoors, the lifestyle offering continues with a private poolside setting, open usable land and the charm of acreage living. With space for vegetable gardens or fruit trees, alongside 50,000L of rainwater storage, 5kW solar, Starlink connectivity and a chook pen, the property embraces a more self-sufficient way of life, while the surrounding grounds offer space to expand, explore or simply unwind.
Enhancing its versatility, a flat pad below the main residence presents exciting potential for a second dwelling or additional improvements (STCA), offering flexibility for extended family living or future value.
Despite its peaceful, private setting, the property remains conveniently located just 8 minutes from the heart of Samford Village, with its cafes, schools and local amenities, and approximately 35 minutes to the Brisbane CBD and airport, offering the perfect balance of seclusion and accessibility.
Opportunities of this calibre are tightly held. Contact Chelsea Perry of McGrath Samford today to be among the first to experience this exceptional property.
Disclaimer: While every effort has been made to ensure the accuracy of this information, the selling agents cannot guarantee its accuracy and accept no liability (whether express or implied) for any errors or omissions. Neither the seller nor the selling agent makes any representation or warranty as to the accuracy of the information provided. Interested parties should undertake their own due diligence to verify the information. The details provided are indicative only and should not be relied upon unless independently confirmed.
Immerse yourself in the captivating ambiance of our properties. Book a personalized tour to explore the exquisite beauty and unique features of our property.
Our knowledgeable staff will guide you through the property, answering any questions you may have.
Added: May 19, 2026
Added: May 19, 2026
Added: May 18, 2026
Added: May 21, 2026
Added: May 21, 2026
Added: May 21, 2026
Browse our range of properties currently for Sale
Emails
Phone
Are you building market share in particular territory? If you need help talk to Craig on 0403359541