35 Roseberry Place, Burpengary East – Elegant Queenslander Living on 4,979m² with Pool, Sheds & Dual Access
Added: May 11, 2026
Open Home:
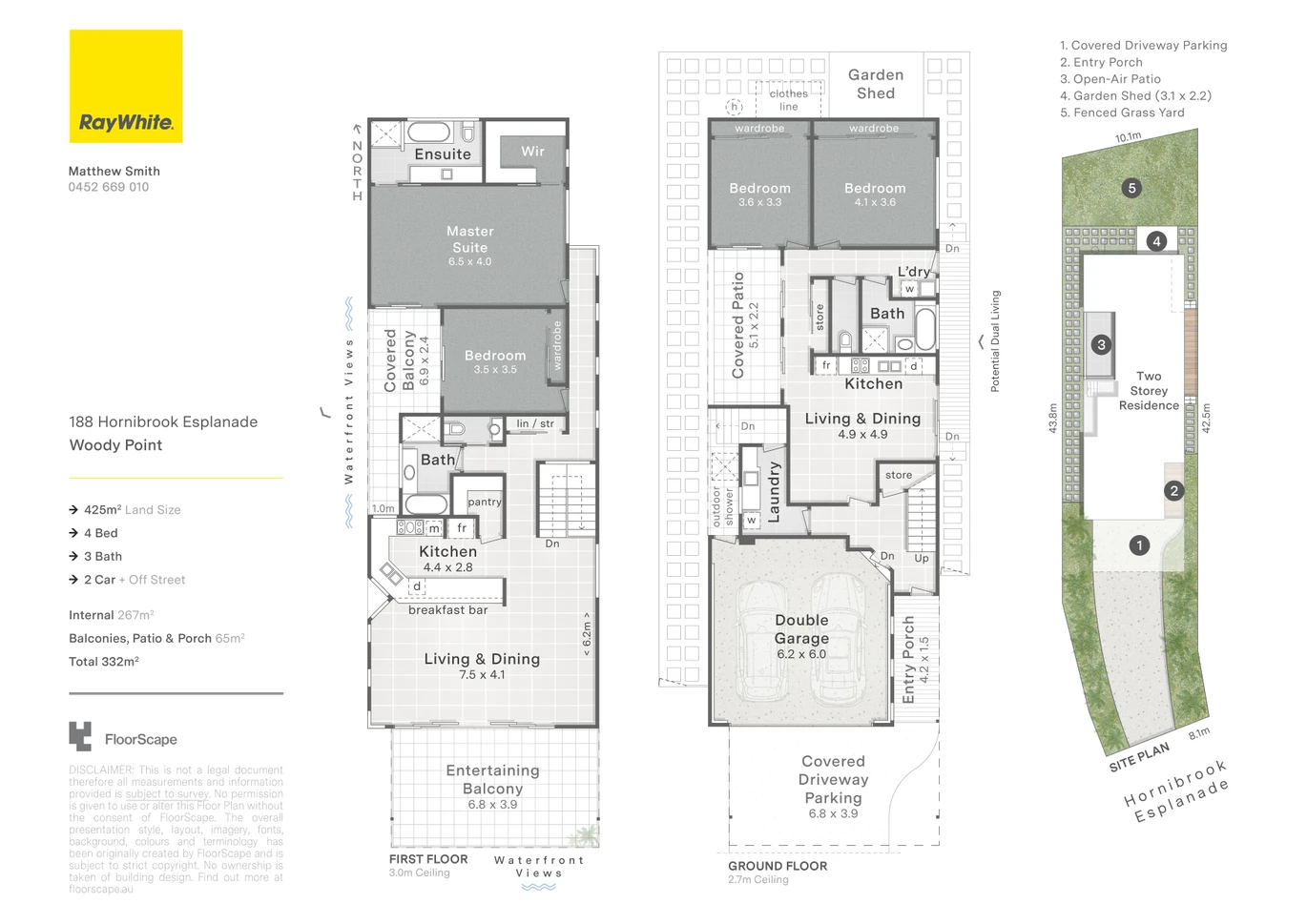
Take in breathtaking water views and direct Brisbane CBD outlooks from this high-set 4-bedroom, 3-bathroom family home. The open-plan kitchen, lounge, and dining boasts soaring high ceilings and flows seamlessly onto the expansive front deck, creating a stunning indoor-outdoor space for entertaining, relaxing, or soaking up the views. The home also offers dual-living potential, perfect for modern family flexibility.
Spanning two levels, the home provides multiple living zones, flexible spaces for extended family or guests, and low-maintenance outdoor areas. Elevated yet private, it combines coastal lifestyle appeal with everyday convenience, being close to parks, cafes, schools, and the waterfront.
Why You'll Love It:
+ Open-plan kitchen, lounge, and dining flow seamlessly onto the front entertaining deck with water and CBD views
+ High-set home - light, airy interiors with soaring ceilings
+ Waterfront position with stunning outlooks
+ Dual living potential - perfect for multi-generational families
+ 4 bedrooms, 3 bathrooms, 2-car garage - spacious and practical
+ Manageable 425m² block - low-maintenance outdoor space
+ Multiple living areas - flexible, functional layout
+ Woody Point location - coastal lifestyle with easy access to amenities
So Much on Your Doorstep:
+ Belvedere Hotel & seaside cafés - relaxed coastal vibes
+ Stroll along Woody Point waterfront and boardwalk
+ Redcliffe Hospital - essential healthcare nearby
+ Redcliffe Markets - fresh produce & local crafts on weekends
+ Redcliffe shops & restaurants - boutique stores to beachfront dining
+ Excellent school options - including Clontarf Beach State School & High School, Southern Cross Catholic College, and Grace Lutheran College
+ Kayo Stadium - home of the Redcliffe Dolphins and local sporting events
+ Ted Smout Memorial Bridge - quick connection to the city
+ 30 mins to Brisbane CBD, 20 mins to Brisbane Airport
Don't miss this rare opportunity to secure your spacious waterfront home. Please call Matt or Jesse today to arrange your inspection.
Map is for rough illustrative purposes
Immerse yourself in the captivating ambiance of our properties. Book a personalized tour to explore the exquisite beauty and unique features of our property.
Our knowledgeable staff will guide you through the property, answering any questions you may have.
Added: May 11, 2026
Added: May 11, 2026
Added: May 11, 2026
Added: May 11, 2026
Added: May 12, 2026
Added: May 12, 2026
Take in breathtaking water views and direct Brisbane CBD outlooks from this high-set 4-bedroom, 3-bathroom family home. The open-plan kitchen, lounge, and dining boasts soaring high ceilings and flows seamlessly onto the expansive front deck, creating a stunning indoor-outdoor space for entertaining, relaxing, or soaking up the views. The home also offers dual-living potential, perfect for modern family flexibility.
Spanning two levels, the home provides multiple living zones, flexible spaces for extended family or guests, and low-maintenance outdoor areas. Elevated yet private, it combines coastal lifestyle appeal with everyday convenience, being close to parks, cafes, schools, and the waterfront.
Why You'll Love It:
+ Open-plan kitchen, lounge, and dining flow seamlessly onto the front entertaining deck with water and CBD views
+ High-set home - light, airy interiors with soaring ceilings
+ Waterfront position with stunning outlooks
+ Dual living potential - perfect for multi-generational families
+ 4 bedrooms, 3 bathrooms, 2-car garage - spacious and practical
+ Manageable 425m² block - low-maintenance outdoor space
+ Multiple living areas - flexible, functional layout
+ Woody Point location - coastal lifestyle with easy access to amenities
So Much on Your Doorstep:
+ Belvedere Hotel & seaside cafés - relaxed coastal vibes
+ Stroll along Woody Point waterfront and boardwalk
+ Redcliffe Hospital - essential healthcare nearby
+ Redcliffe Markets - fresh produce & local crafts on weekends
+ Redcliffe shops & restaurants - boutique stores to beachfront dining
+ Excellent school options - including Clontarf Beach State School & High School, Southern Cross Catholic College, and Grace Lutheran College
+ Kayo Stadium - home of the Redcliffe Dolphins and local sporting events
+ Ted Smout Memorial Bridge - quick connection to the city
+ 30 mins to Brisbane CBD, 20 mins to Brisbane Airport
Don't miss this rare opportunity to secure your spacious waterfront home. Please call Matt or Jesse today to arrange your inspection.
Immerse yourself in the captivating ambiance of our properties. Book a personalized tour to explore the exquisite beauty and unique features of our property.
Our knowledgeable staff will guide you through the property, answering any questions you may have.
Added: May 11, 2026
Added: May 11, 2026
Added: May 11, 2026
Added: May 11, 2026
Added: May 12, 2026
Added: May 12, 2026
Browse our range of properties currently for Sale
Emails
Phone
Are you building market share in particular territory? If you need help talk to Craig on 0403359541