38 Cochran Street, Woodford – Your next chapter starts here – spacious family home on 3,003sqm of possibility
Added: February 6, 2026
Open Home:
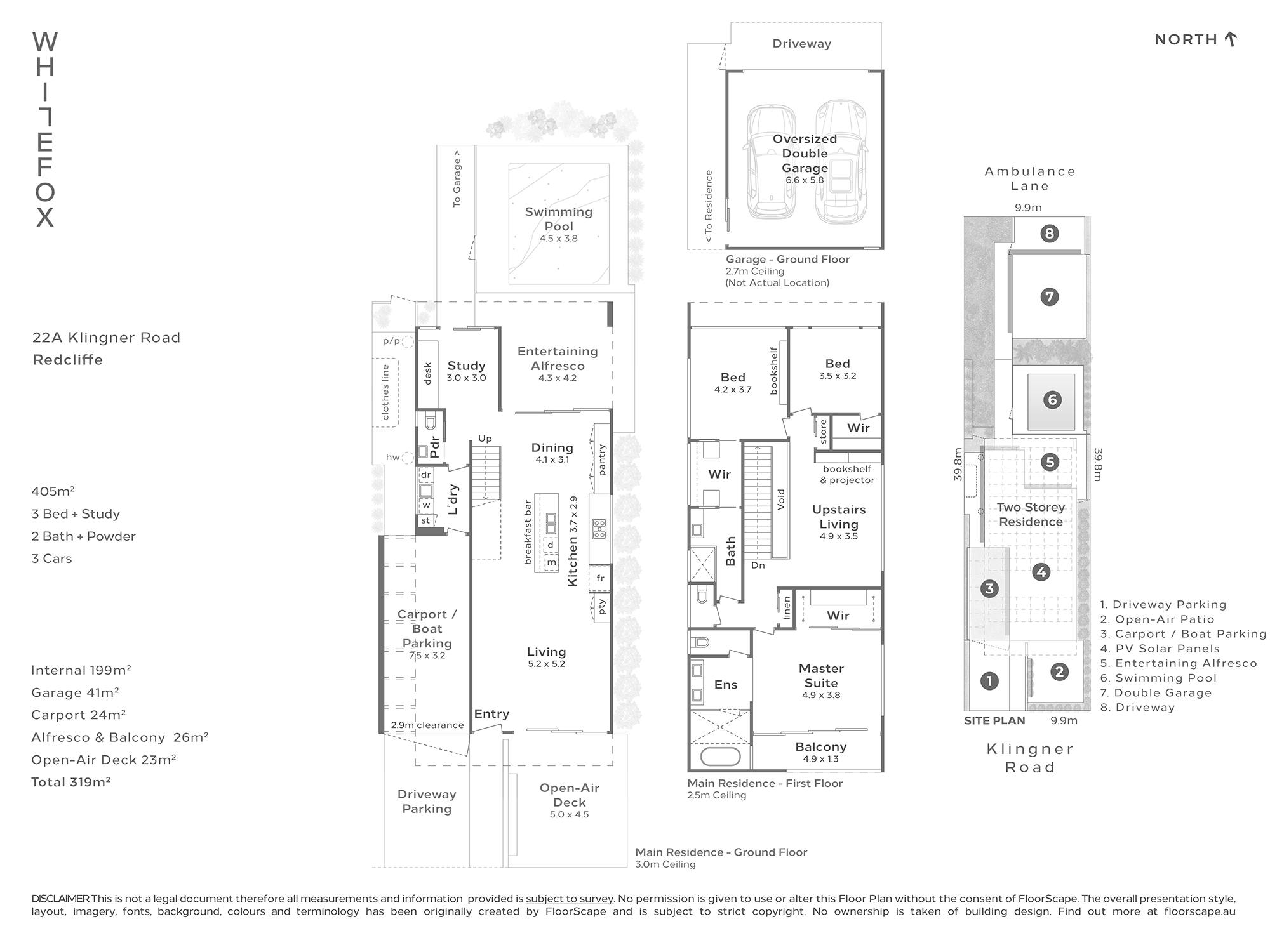
Architecturally designed by Reitsma and Associates and crafted by sustainability-focused builder Planet Homes QLD, this residence delivers a level of living rarely seen on the Redcliffe Peninsula. A home where design and environmental performance work as one.
Anchored by three metre ceilings and polished concrete floors, the ground level unfolds with a sense of lightness and clarity. The kitchen, dining and living zones are refined in palette and functional in execution, featuring stone benchtops, integrated joinery and a layout that flows effortlessly to the outdoors.
Sustainability is embedded throughout. A 13.6 kW solar system, double insulated walls and double glazed windows work together to create year round comfort and meaningful long term efficiency. Reclaimed timber details, thoughtful material selections and established landscaped gardens reinforce the home’s eco-driven philosophy.
Both levels offer separation, privacy and practicality. The master suite features its own balcony with ocean glimpses, a refined ensuite, rain shower and bath. Additional bedrooms, the media room with projector and built-in cabinetry elevate daily living.
Dual street frontages enhance convenience. Rear lane double garaging provides secure parking, while a three metre high carport at the front is ideal for a boat, Jetski or caravan.
Located moments from the coastline. Sitting within Redcliffe’s café and lifestyle precinct. Beaches, bars, markets and the jetty all become part of your everyday rhythm.
Contemporary coastal living. Executed with restraint, intelligence and intention.
SEALS THE DEAL
A rarely offered architectural home in the heart of Redcliffe. Quality, sustainable, walkable, beautifully designed and built for the future.
Map is for rough illustrative purposes
Immerse yourself in the captivating ambiance of our properties. Book a personalized tour to explore the exquisite beauty and unique features of our property.
Our knowledgeable staff will guide you through the property, answering any questions you may have.
Added: February 6, 2026
Added: February 6, 2026
Added: February 6, 2026
Added: February 6, 2026
Added: January 28, 2026
Added: January 28, 2026
Architecturally designed by Reitsma and Associates and crafted by sustainability-focused builder Planet Homes QLD, this residence delivers a level of living rarely seen on the Redcliffe Peninsula. A home where design and environmental performance work as one.
Anchored by three metre ceilings and polished concrete floors, the ground level unfolds with a sense of lightness and clarity. The kitchen, dining and living zones are refined in palette and functional in execution, featuring stone benchtops, integrated joinery and a layout that flows effortlessly to the outdoors.
Sustainability is embedded throughout. A 13.6 kW solar system, double insulated walls and double glazed windows work together to create year round comfort and meaningful long term efficiency. Reclaimed timber details, thoughtful material selections and established landscaped gardens reinforce the home’s eco-driven philosophy.
Both levels offer separation, privacy and practicality. The master suite features its own balcony with ocean glimpses, a refined ensuite, rain shower and bath. Additional bedrooms, the media room with projector and built-in cabinetry elevate daily living.
Dual street frontages enhance convenience. Rear lane double garaging provides secure parking, while a three metre high carport at the front is ideal for a boat, Jetski or caravan.
Located moments from the coastline. Sitting within Redcliffe’s café and lifestyle precinct. Beaches, bars, markets and the jetty all become part of your everyday rhythm.
Contemporary coastal living. Executed with restraint, intelligence and intention.
SEALS THE DEAL
A rarely offered architectural home in the heart of Redcliffe. Quality, sustainable, walkable, beautifully designed and built for the future.
Immerse yourself in the captivating ambiance of our properties. Book a personalized tour to explore the exquisite beauty and unique features of our property.
Our knowledgeable staff will guide you through the property, answering any questions you may have.
Added: February 6, 2026
Added: February 6, 2026
Added: February 6, 2026
Added: February 6, 2026
Added: January 28, 2026
Added: January 28, 2026
Browse our range of properties currently for Sale
Emails
Phone
Are you building market share in particular territory? If you need help talk to Craig on 0403359541