27 Pedwell Road, Camp Mountain – Premium Camp Mountain Usable Family Acreage Living with Stables and Dam
Added: April 16, 2026
Open Home:
THE DEAL: Private Negotiation
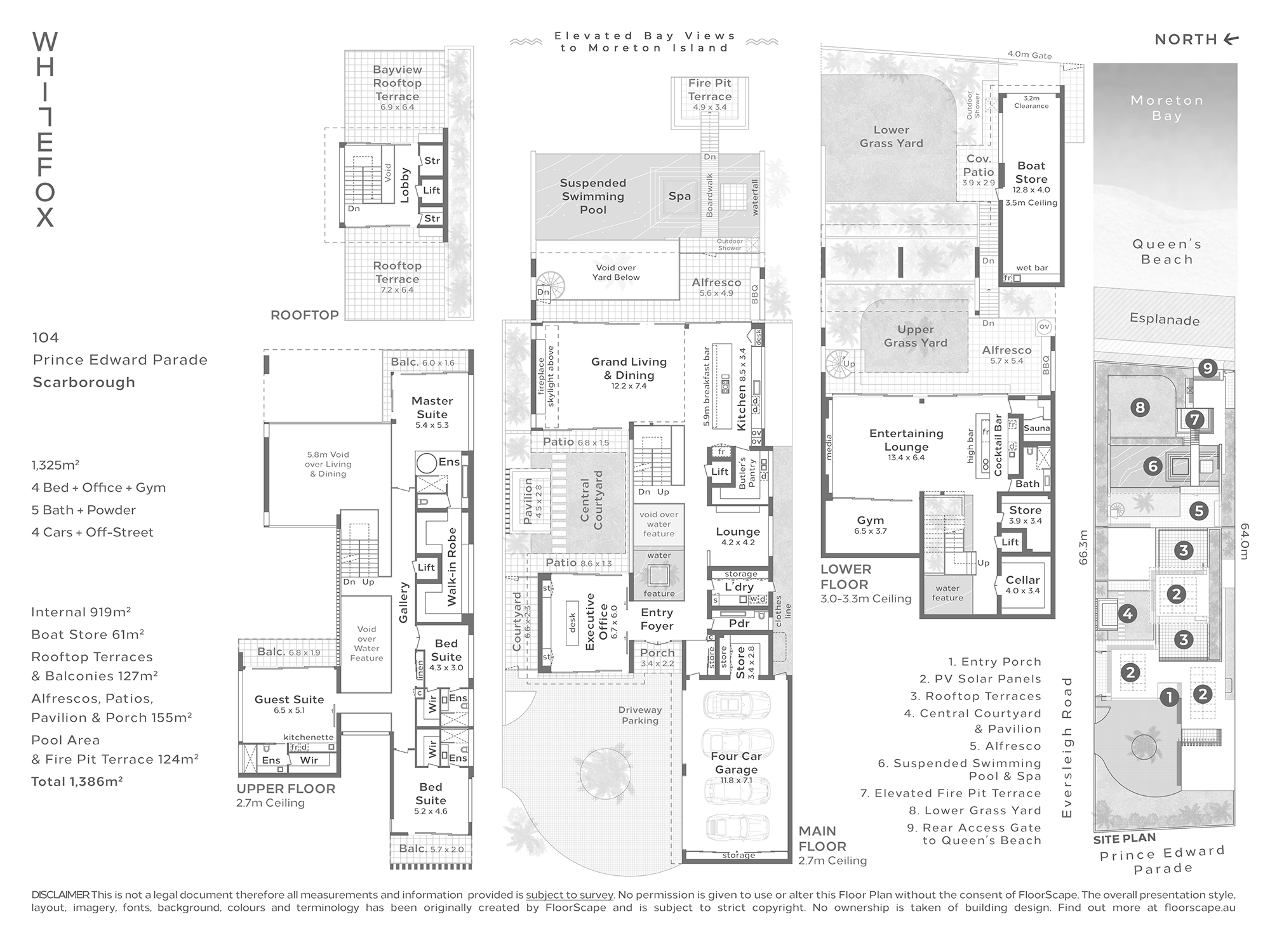
Set across 1,327m² of absolute beachfront on a protected north-east corner, Seachange commands sweeping views across Moreton Bay and stands among the coastline’s most significant contemporary estates — delivered by multi award-winning builder GRAYA in collaboration with renowned designer Chris Clout.
Four levels of uncompromising concrete construction establish scale, strength and permanence. Every space is oriented to capture light, breeze and uninterrupted coastal outlooks, creating a residence that is both private retreat and elite entertaining platform.
A seven-metre ceiling defines the main living and dining domain, finished in oak herringbone flooring and imported Croatian hand-laid stone. Walls of glass frame the bay, while a statement fireplace anchors the space.
The six-metre Gaggenau kitchen, complete with full butler’s pantry, connects to multiple living zones, a full-service bar and a temperature-controlled wine cellar. A gym, sauna and landscaped entertaining terrace sit beneath a cantilevered pool and independent spa that project toward the horizon.
The waterfront primary suite delivers scale and privacy with dual dressing rooms and a luxurious ensuite. A self-contained guest retreat, executive office and ensuited bedrooms ensure flexibility without compromise.
A private elevator services all four levels, supported by full Control4 automation, CCTV security, workshop facilities and garaging for four vehicles. Direct beach access and a private boat shed complete the offering.
SEALS THE DEAL
Seachange, where architecture meets horizon, and craftsmanship meets legacy. This is a home designed for generations.
Map is for rough illustrative purposes
Immerse yourself in the captivating ambiance of our properties. Book a personalized tour to explore the exquisite beauty and unique features of our property.
Our knowledgeable staff will guide you through the property, answering any questions you may have.
Added: April 16, 2026
Added: March 24, 2026
Added: March 20, 2026
Added: March 20, 2026
Added: April 16, 2026
Added: April 16, 2026
THE DEAL: Private Negotiation
Set across 1,327m² of absolute beachfront on a protected north-east corner, Seachange commands sweeping views across Moreton Bay and stands among the coastline’s most significant contemporary estates — delivered by multi award-winning builder GRAYA in collaboration with renowned designer Chris Clout.
Four levels of uncompromising concrete construction establish scale, strength and permanence. Every space is oriented to capture light, breeze and uninterrupted coastal outlooks, creating a residence that is both private retreat and elite entertaining platform.
A seven-metre ceiling defines the main living and dining domain, finished in oak herringbone flooring and imported Croatian hand-laid stone. Walls of glass frame the bay, while a statement fireplace anchors the space.
The six-metre Gaggenau kitchen, complete with full butler’s pantry, connects to multiple living zones, a full-service bar and a temperature-controlled wine cellar. A gym, sauna and landscaped entertaining terrace sit beneath a cantilevered pool and independent spa that project toward the horizon.
The waterfront primary suite delivers scale and privacy with dual dressing rooms and a luxurious ensuite. A self-contained guest retreat, executive office and ensuited bedrooms ensure flexibility without compromise.
A private elevator services all four levels, supported by full Control4 automation, CCTV security, workshop facilities and garaging for four vehicles. Direct beach access and a private boat shed complete the offering.
SEALS THE DEAL
Seachange, where architecture meets horizon, and craftsmanship meets legacy. This is a home designed for generations.
Immerse yourself in the captivating ambiance of our properties. Book a personalized tour to explore the exquisite beauty and unique features of our property.
Our knowledgeable staff will guide you through the property, answering any questions you may have.
Added: April 16, 2026
Added: March 24, 2026
Added: March 20, 2026
Added: March 20, 2026
Added: April 16, 2026
Added: April 16, 2026
Browse our range of properties currently for Sale
Emails
Phone
Are you building market share in particular territory? If you need help talk to Craig on 0403359541